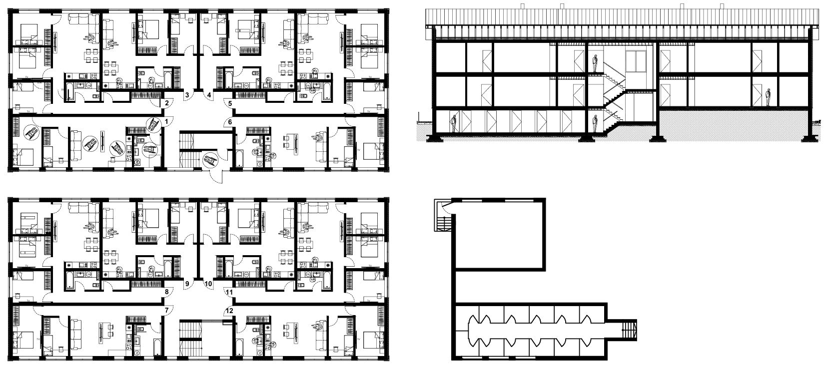
Daudzdzīvokļu dzīvojamās mājas Čiekurkalna 1.līnija 37
BŪVPROJEKTA IZSTRĀDE / PROJEKTĒŠANA
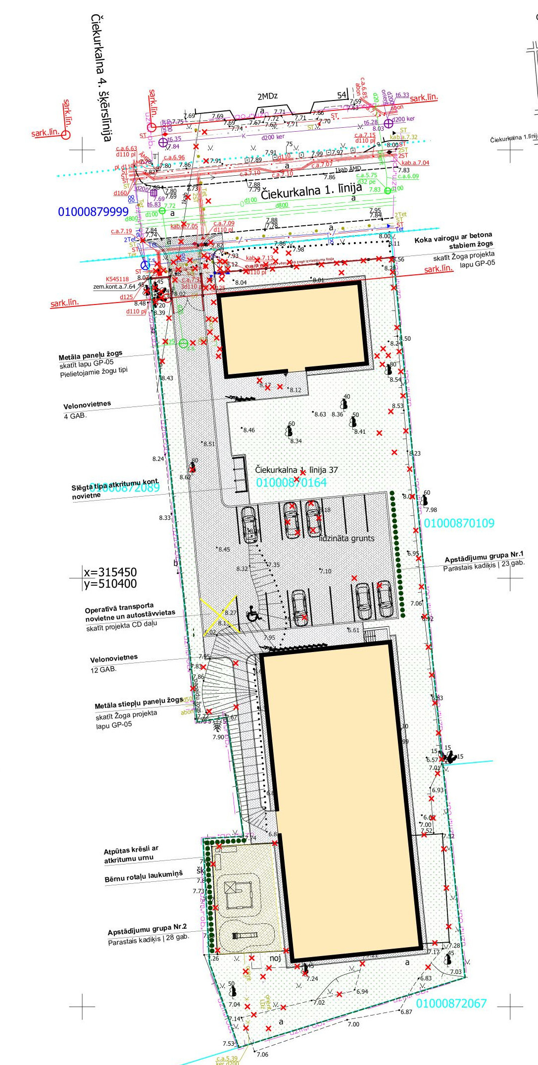
Veicām pilna būvprojekta izstrādi teritorijas attīstībai Čiekurkalna 1.līnijā 37, kura ietvaros tika projektēta viena mazstāvu dzīvojamā ēka ar 4 dzīvokļiem un viena daudzdzīvokļu dzīvojamā ēkas ar 12 dzīvokļiem, kā arī projektēts teritorijas labiekārtojums. Buvprojekta izstrādes laikā veicām sekojošus darbus un nodrošinājām sekojošu projekta daļu izstrādi:
Būvprojekta vadīšana / Būvatļaujas saņemšana / Projektēšanas nosacījumu izpilde
Tehnisko noteikumu saņemšana
Arhitektūras daļa (AR)
Apkure Vēdināšana un Gaisa Kondicionēšana (AVK)
Būvkonstrukciju daļa (BK)
Darbu Organizācija Projekts (DOP)
Energo efektivitātes sertifikāts (ES-P)
Elektroapgāde (EL/ELT)
Elektronisko sakaru sistēmas (ESS / EST)
Ģenerālplāns (GP)
Labiekārtojuma plāns
Siltumapgāde (SAT)
Siltummehānika (SM)
Tāme (T)
Ceļu Darbu (TS-CD)
Ugunsgrēka atklāšanas un trauksmes signalizācijas sistēmas (UATS)
Ūdensapgāde (UK/UKT)
Ugunsdrošības pasākumu pārskats (UPP)
Koku novērtējuma saņemšana
Koku ciršanas atļaujas saņemšana
Koku Aizsardzības Plāns
Arhitektoniski mākslinieciskā inventarizācija teritorijā esošajām ēkām
Kvartāla analīze
3D Vizualizācijas / Fotomontāžas
Pasūtītājs: SIA “Ondulat”
Valsts: Latvija
Arhitektūras risinājumi: Ilvins Uzors




